Liste | Bilder

N°181 + INFO
Name
Theater 'Equilibre'
Ort
Fribourg
Jahr
2000 - 2011
Kategorie
Projektwettbewerb, 1. Preis
Auftraggeber
Stadt Fribourg
Fotos

©Ruedi Walti

Team

Ramond Aeberli, Dorette Baumann, Roman Brantschen, Bruce A. Buckingham, Jean-Pierre Dürig, Judith Dürr, Michel Gübeli, Isabelle Kaufmann, Caspar Kemper, Simon Kempf, Kornelius Kohlmeyer, Gasung Lim, Khai Ly, Verena Nelles, Valentina Patrono, Philippe Rämi, Silvia Radinsky, Benedikt Ramser, Josep Ribes Alcaina, Ludmilla Thomann, Simone Trottmann, Marisa Vita, Piet Wolf

Beschrieb

Projekt/Aufgabe.
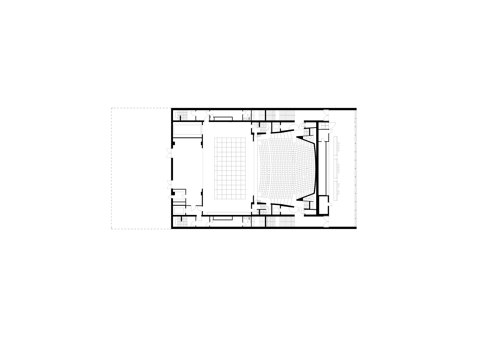
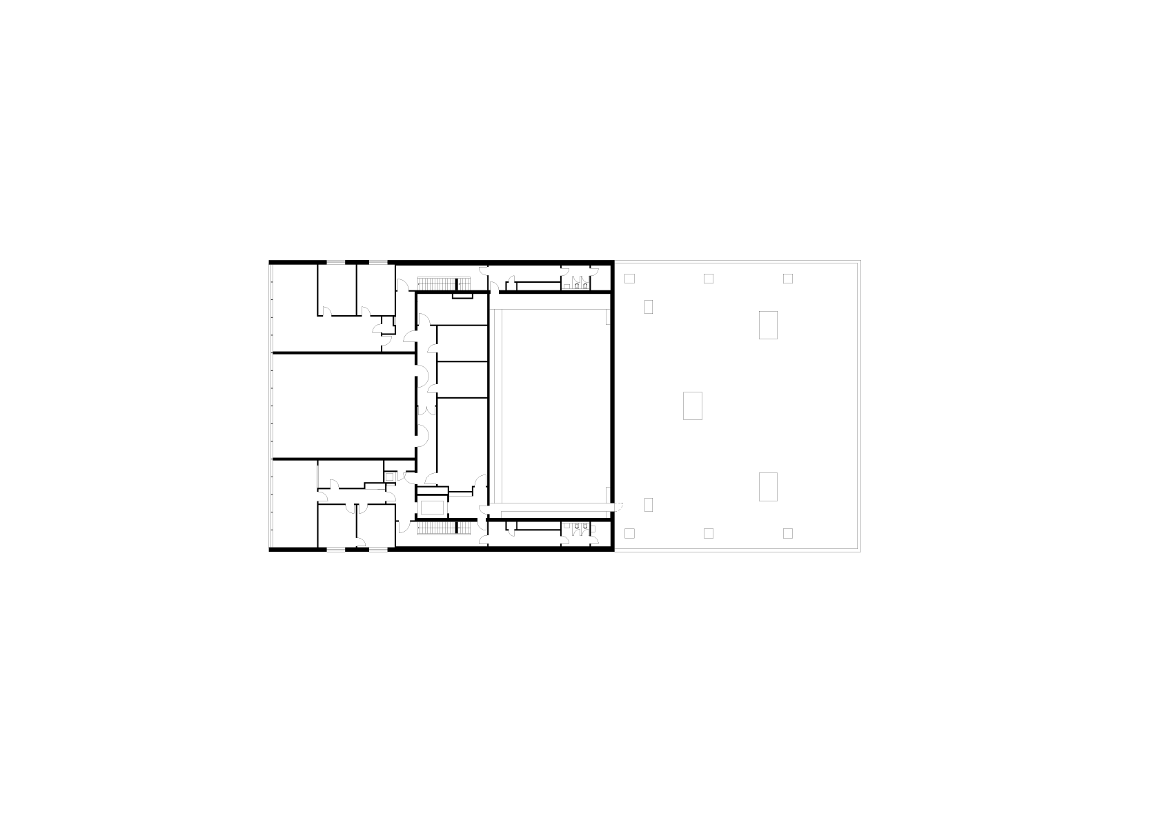
Das Projekt umfasst einen Theatersaal mit Foyer, Nebenräumen und Probebühne über der bestehenden Bausubstanz mit einem Kino im Untergrund sowie einem vorhandenen Restaurantprovisorium auf der Südostseite. Das Theater soll ein Stadtbaustein zwischen urbanem Stadtraum und Parkanlage sein.

Städtebau/Architektur.
Die minimale Standfläche des Neubaus erlaubt die Maximierung des städtisch-öffentlichen Aussenraumes. Auf unterschiedlichen Höhen kragen stadtseitig der Übungssaal und die Administration, parkseitig das Auditorium und die Bar aus. Das Foyer des Theaters und das Büro für Touristeninformation befinden sich im öffentlichen Erdgeschoss.

Materialisierung/Konstruktion.
Die Auskragungen werden durch zwei vom Bühnenturm abgehängte, seitlich ausgesteifte Tragrahmen in Stahlbeton erstellt. Darin werden zudem die Erschliessung für Zuschauer und Mitarbeiter sowie die Gebäudetechnik geführt. Grosse Fachwerke überspannen in Querrichtung den Bühnenturm und das Auditorium.

Team

Architektur:
Dürig AG, Zürich
Ramond Aeberli, Dorette Baumann, Roman Brantschen, Bruce A. Buckingham, Jean-Pierre Dürig, Judith Dürr, Michel Gübeli, Isabelle Kaufmann, Caspar Kemper, Simon Kempf, Kornelius Kohlmeyer, Gasung Lim, Khai Ly, Verena Nelles, Valentina Patrono, Philippe Rämi, Silvia Radinsky, Benedikt Ramser, Josep Ribes Alcaina, Ludmilla Thomann, Simone Trottmann, Marisa Vita, Piet Wolf

Bauleitung:
Page Architectes SA, Freiburg

HLKKSE-Ingenieure:
Sacao SA, Givisiez
ARGE Josef Piller and Pierre Chuard, Fribourg

Bauingenieur:
CSD Ingénieurs, Fribourg
ARGE Brasey and Tremblet, Fribourg and Geneva

Bauphysik:
Estia SA, Lausanne

Akustik:
BAKUS GmbH, Zürich

Saalakustik:
Xu-Acoustique. Paris (France)

Bühnenplanung:
Hans-Jürg Huber, Horgen; Walter Köttke, Bayreuth (Germany); Vadas Conception lumière, La Chaux-de-Fonds

Lichtplaner:
Amstein & Walthert AG