Liste | Bilder

N°712 + INFO
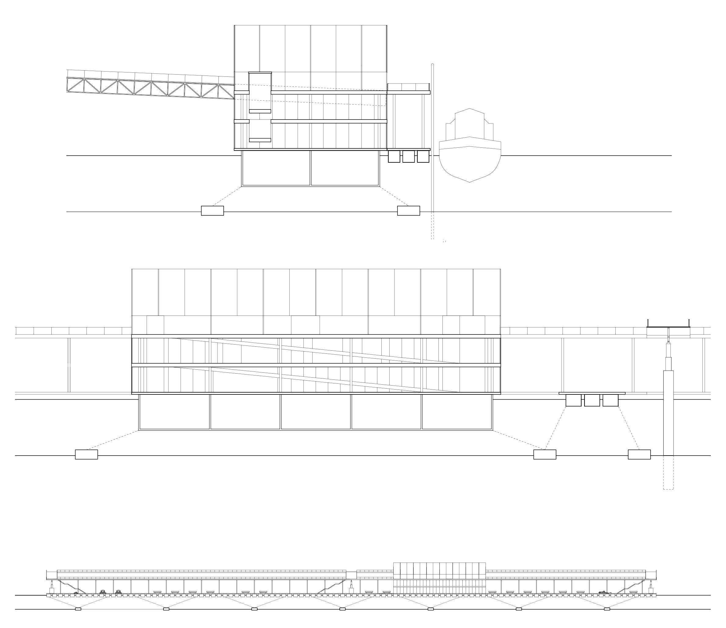
Name
Yeoui-Naru Ferry Terminal
Ort
Seoul (KOR)
Jahr
2017
Kategorie
Projektwettbewerb
Auftraggeber
City of Seoul
Modell und Modellbilder

Zaborowsky Modellbau GmbH, Zürich

Team

Architektur:
Jean-Pierre Dürig, Gian Paolo Ermolli, Giulia Augugliaro