Liste | Bilder

N°827 + INFO
Name
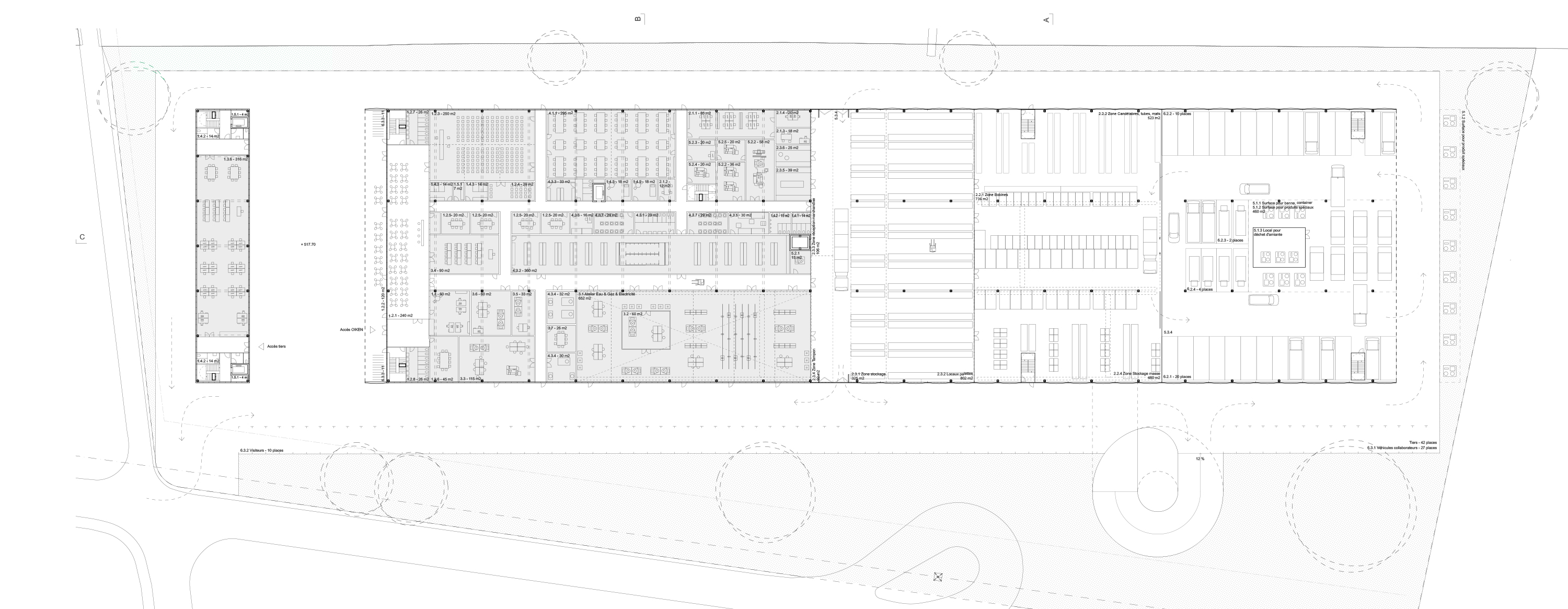
Werkhof OIKEN
Ort
Sierre
Jahr
2020
Kategorie
Projektwettbewerb
Auftraggeber
OIKEN, Gemeinden Sierre und Sion
Rendering

Tejo Collective

Modell und Modellbilder

Zaborowsky Modellbau GmbH, Zürich

Team

Architektur:
Jean-Pierre Dürig, Gian Paolo Ermolli

Landschaftsarchitektur:
KuhnLandschaftsarchitekten GmbH