Liste | Bilder

N°922 + INFO
Name
Schulanlage Utogrund
Ort
Zürich
Jahr
2023
Kategorie
Projektwettbewerb, 2. Preis
Auftraggeber
Stadt Zürich
Renderings

Studio Miskeljin, Zürich

Modell und Modellbau

Zaborowsky Modellbau GmbH, Zürich

Team

Architecture:
DÜRIG AG, Zürich
Guillermo Dürig, Alice Bidorini, Raphael Bösch, Tobias Noe

General planning:
uas ag – unternehmen für architektur und städtebau ag, Zürich

Civil engineers:
Basler & Hofmann AG, Zürich

Building Services:
Amstein + Walthert AG, Zürich

Landschaftsarchitektur:
Pilloni Landschaft und Städtebau, Zürich

Kurzbeschrieb

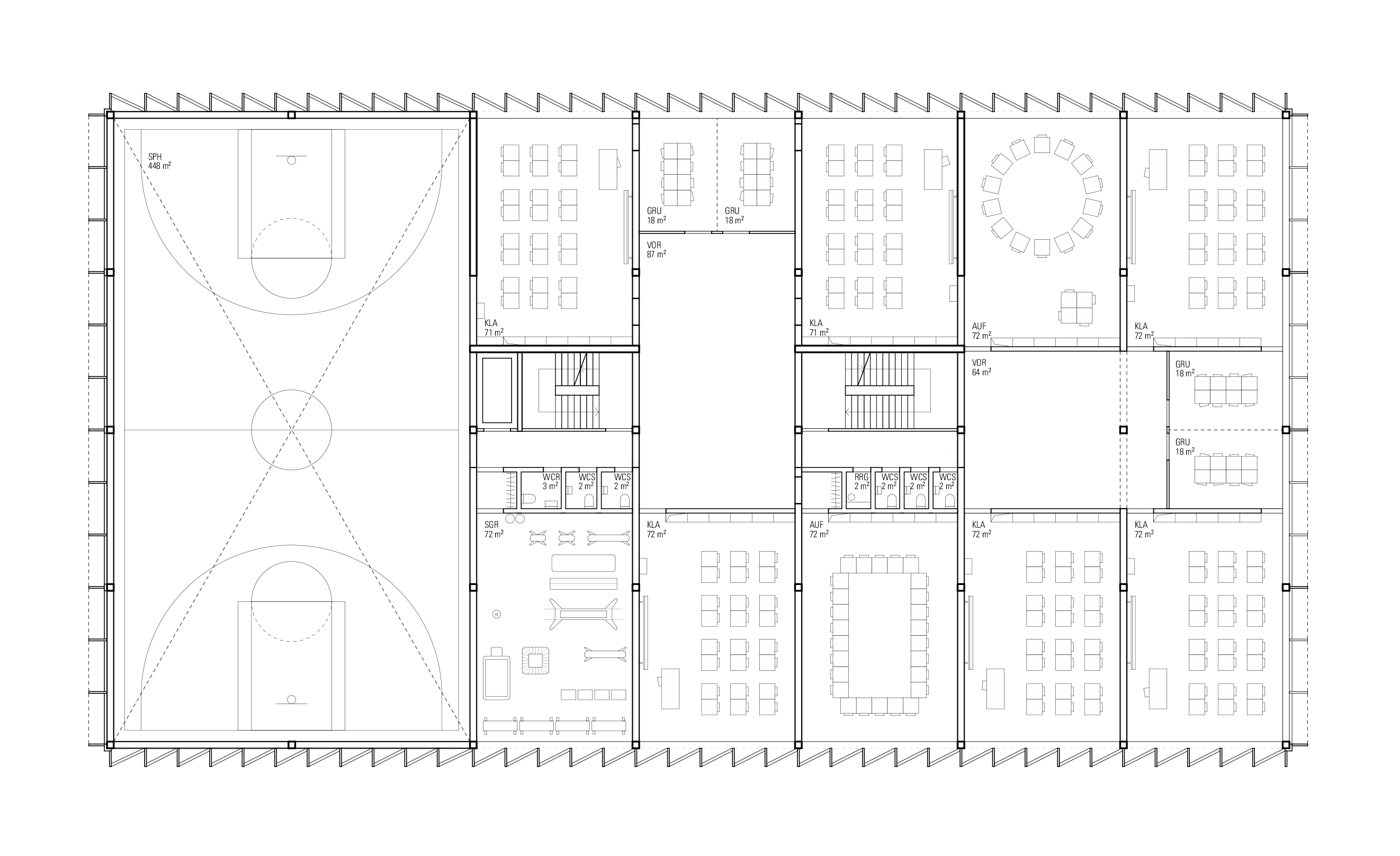
Das Projekt reagiert mit radikaler Einfachheit auf die engen Platzverhältnisse und die einschränkende Lärmbelastung. Das kompakte Bauvolumen kragt über die Rennbahn aus und schafft einen einzigartigen, gedeckten Aussenraum. Zwei Sporthallen schützen die 18 Klassenzimmer von der Lärmemissionen, das öffentliche Erdgeschoss ist sowohl für die Schule als auch für das Quartier permeabel und zugänglich.