Liste | Bilder

N°888 + INFO
Name
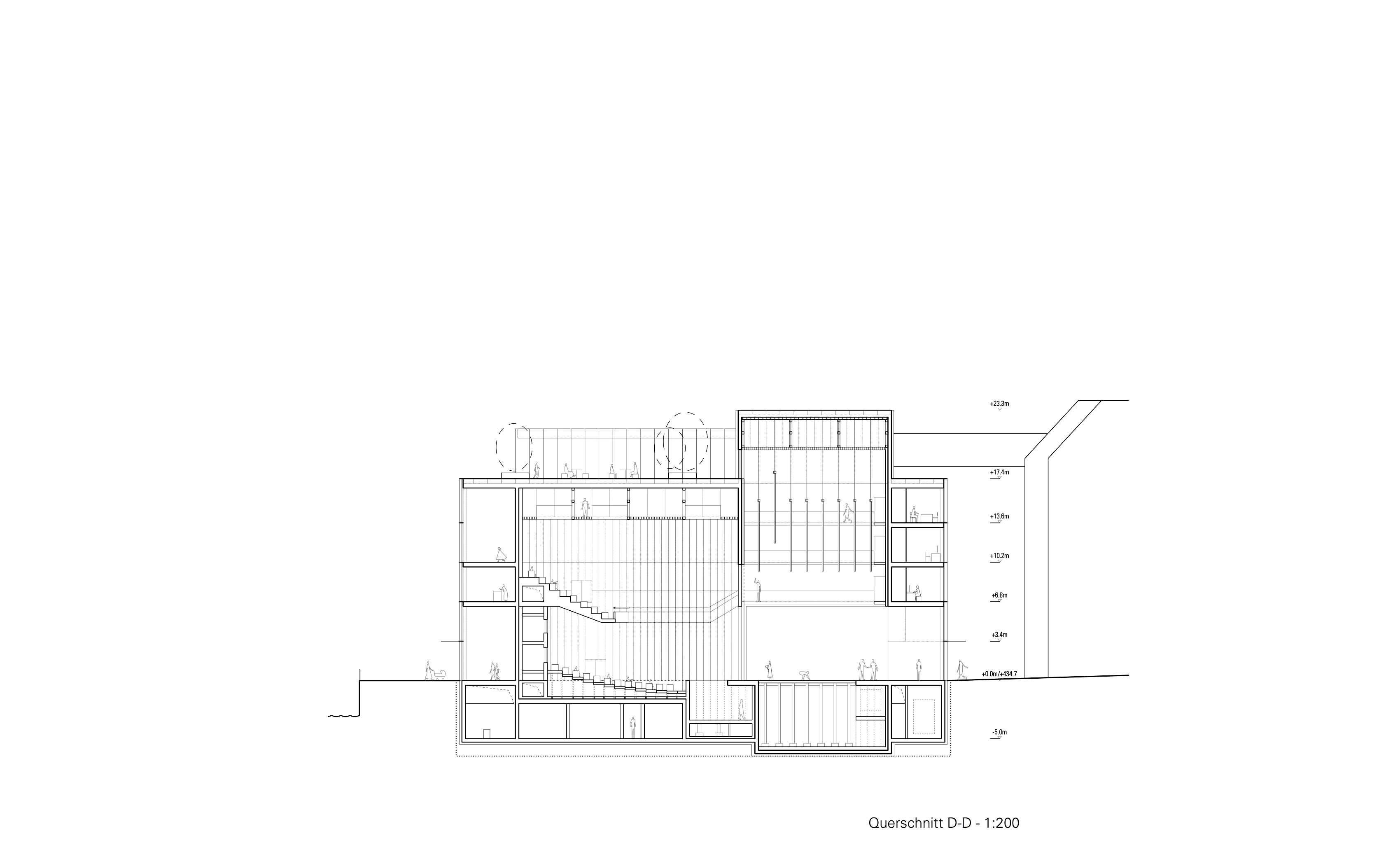
Neues Luzerner Theater
Ort
Luzern
Jahr
2022
Kategorie
Projektwettbewerb
Auftraggeber
Stadt Luzern
Renderings

Filippo Bolognese Images

Modell und Modellbilder

Zaborowsky Modellbau GmbH, Zürich

Team

Architektur:
Jean-Pierre Dürig, Tommaso Giovannoli

Landschaftsarchitekt:
KuhnLandschaftsarchitekten GmbH