Liste | Bilder

N°716 + INFO
Name
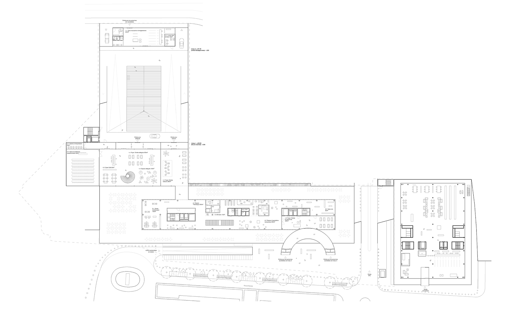
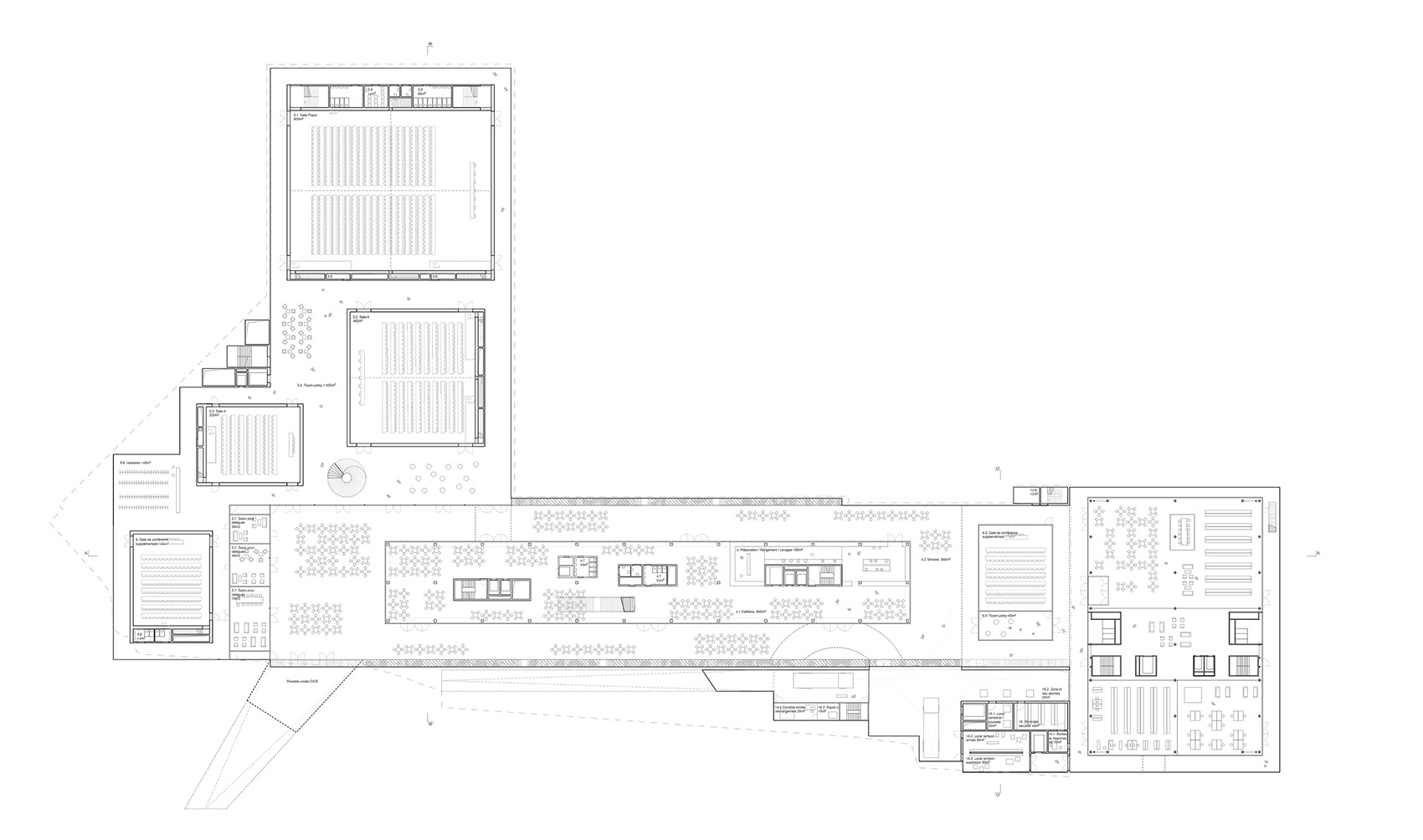
Hauptsitz Internationale Fernmeldeunion ITU
Ort
Genf
Jahr
2017
Kategorie
Projektwettbewerb, 4. Preis
Auftraggeber
Internationale Fernmeldeunion
Modell und Modellbau

Zaborowski Modellbau GmbH, Zürich

Team

Jean-Pierre Dürig, Gian-Paolo Ermolli, Tommaso Giovannoli, Giulia Augugliaro