Liste | Bilder

N°102 + INFO
Name
Gepäcksortierung Flughafen Zürich
Ort
Zürich
Jahr
1997 - 2000
Kategorie
Ideenwettbewerb, 1. Preis
Auftraggeber
Flughafen Zürich (FIG)
Fotos

©Ruedi Walti

Beschrieb

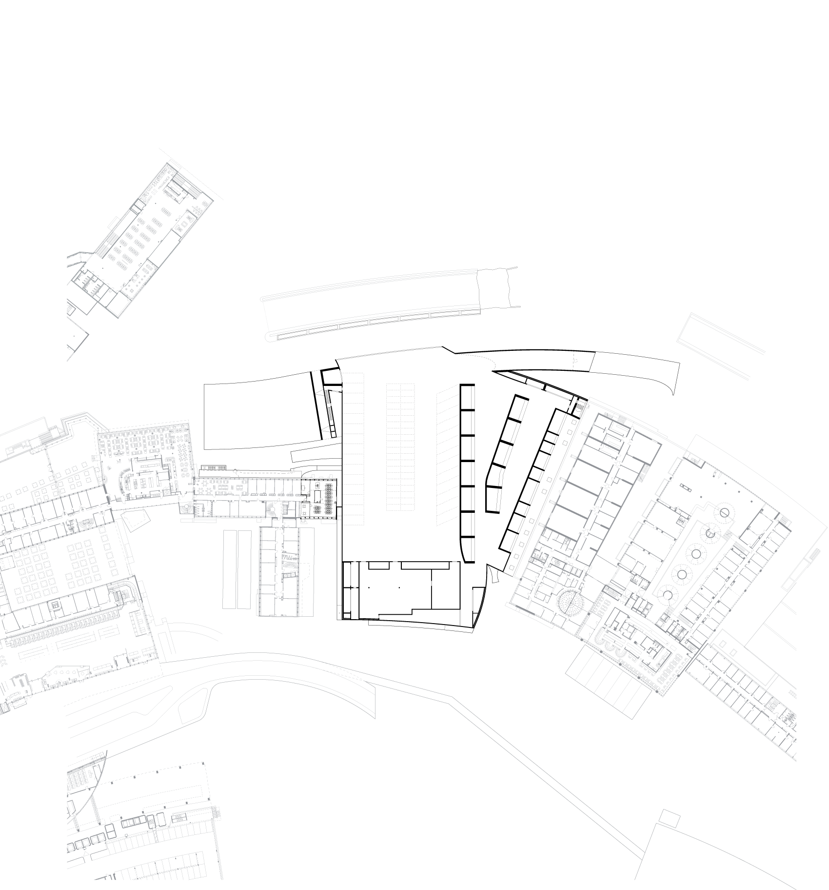
Der Neubau für die zentrale Gepäcksortieranlage steht auf einem Grundstück, das begrenzt wird durch zwei Nachbargebäude, das Vorfeld und eine Strasse auf der Landseite. Es schliesst als Schlussstein die Lücke zwischen den Terminals und Frachtgebäuden.

Das Gebäude nimmt bestehende Radien und Geometrien auf und erhält dadurch seine Grundgestalt. Der Grundrissplan ist das wichtigste Arbeitsinstrument für den Entwurf. Die beengten Platzverhältnisse im Inneren und Überlegungen zu einer späteren Umnutzung führen dazu, alle sekundären Elemente in den Gebäudeecken oder ausserhalb des Gebäudes anzuordnen: Treppen, Eingang, Rampen, Schleuse, Lift, Nottreppen, Sonnenschutz etc. Diese einzelnen Elemente sind ebenso wie der zentrale Baukörper als plastische Volumen gestaltet. Die verschiedenen Vor- und Anbauten symbolisieren zugleich die verschiedenen unterirdisch ins Haus laufenden Gepäckbänder.

Der Neubau hat zwei Gesichter. Auf der Landseite schliesst er unmittelbar an die beiden Nachbarbauten an. Das Gebäude übernimmt die Massstäblichkeit der zwei Nachbargebäude und verbindet sich mit diesen, tritt aber dank seiner unterschiedlichen Materialisierung und Detaillierung als eigenständiges Gebäude auf. Auf der Vorfeldseite dominieren grossmassstäbliche Elemente: Rampe, Schneebalkon, Vordach.

Das Gebäude hat eine zweite Nutzung als Abstellfläche für Betriebsfahrzeuge. Diese Nutzung beschert dem Gebäude eine markante Dachlandschaft und die grosse, gedeckte Auffahrtsrampe. Das Vorfeld wird sozusagen auf das Dach hinauf weitergebaut. Im Untergeschoss besteht zudem eine Durchfahrtsstrasse zum Fingerdock A. Diese Nutzungsmischung ergibt, zusammen mit der anspruchsvollen Geometrie und den knappen Platzverhältnissen, den Ausdruck des Hauses.

Die Konstruktion und die Hülle des Gebäudes sind aufgrund funktionaler Überlegungen aus Stahlbeton. Diese Materialwahl wiederum stimmt mit den gewählten Gebäudeformen überein.

Team

Architektur:
Dürig & Rämi, Zürich
Jean-Pierre Dürig, Philippe Rämi, Ruedi Bass, Ludmila Thomann, Stefan Müller, Stephan Derendinger, Jacqueline Schwarz

Bauleitung, Kostenplaner und Bauingenieur:
SKS Bauingenieure AG, Zürich
Projektleiter: Gerhard Beck

HLKK Primärversorgung:
Lier Energietechnik AG, Wallisellen
H. Wildberger

HLKK/S und Fachkoordination:
Schüpbach Engineering AG, Glattbrugg
Projektleiter: W. Schüpbach, HLKK: Laszlo Sipka, Sanitär: R. Bigler

Elektro Primärversorgung:
Christian Kradolfer + Partner, Pfäffikon
Projektleiter: G. De Stefani

Elektro Sekundärversorgung:
Thomas Lüem Partner AG, Dietikon (bis 1999 Herzog, Kull + Lüem AG, Schlieren)
Projektleiter: T. Lüem

MSRL-Technik (Gebäudeautomation):
Boxler MSRL-Engineering, Jona
K. Boxler

Akustik / Bauphysik:
Wichser Akustik + Bauphysk AG, Dübendorf

Geometer:
Hans-Peter Kasper, Kloten

Brandschutz:
Ingenieurbüro E. Götschi, Buchs/ZH

Kostenplaner Wettbewerb:
Christoph Tschannen, Zürich

Holzmodell:
Urs Wagner, Zürich