Liste | Bilder

N°774 + INFO
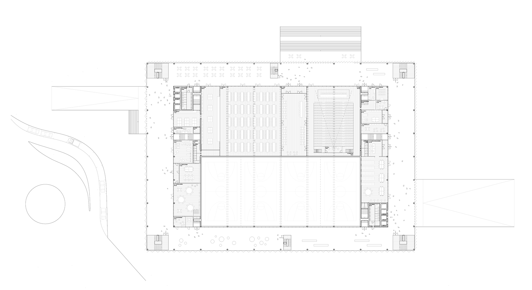
Name
Collège
Ort
Sion
Jahr
2019
Kategorie
Projektwettbewerb, 3. Preis
Auftraggeber
Kanton Wallis
Renderings

maaars architektur visualisierungen, Zürich

Modell und Modellbilder

Zaborowski Modellbau GmbH, Zürich

Team

Architektur:
Dürig AG, Zürich
Jean-Pierre Dürig, Gian Paolo Ermolli

Statik:
MWV Bauingenieure AG, Baden