Liste | Bilder

N°405 + INFO
Name
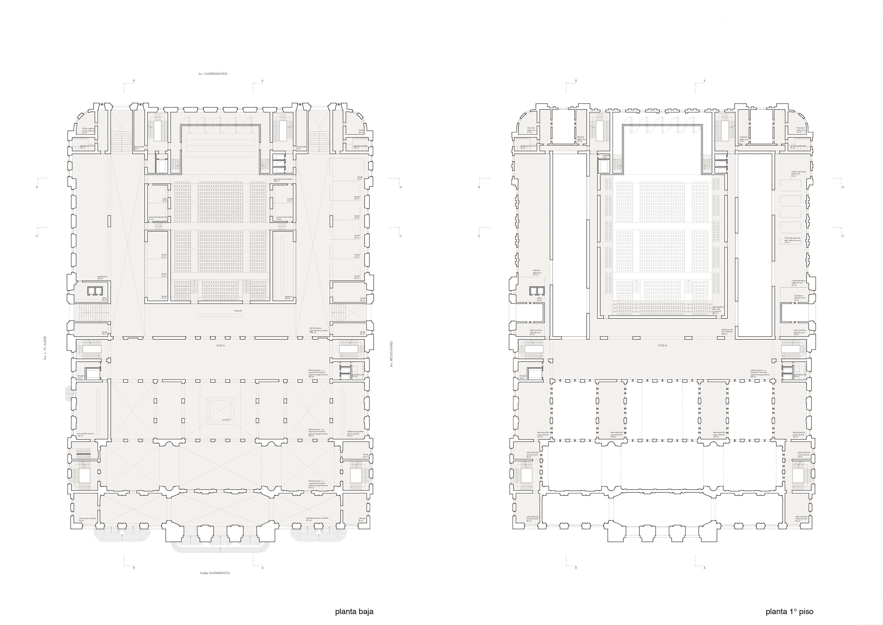
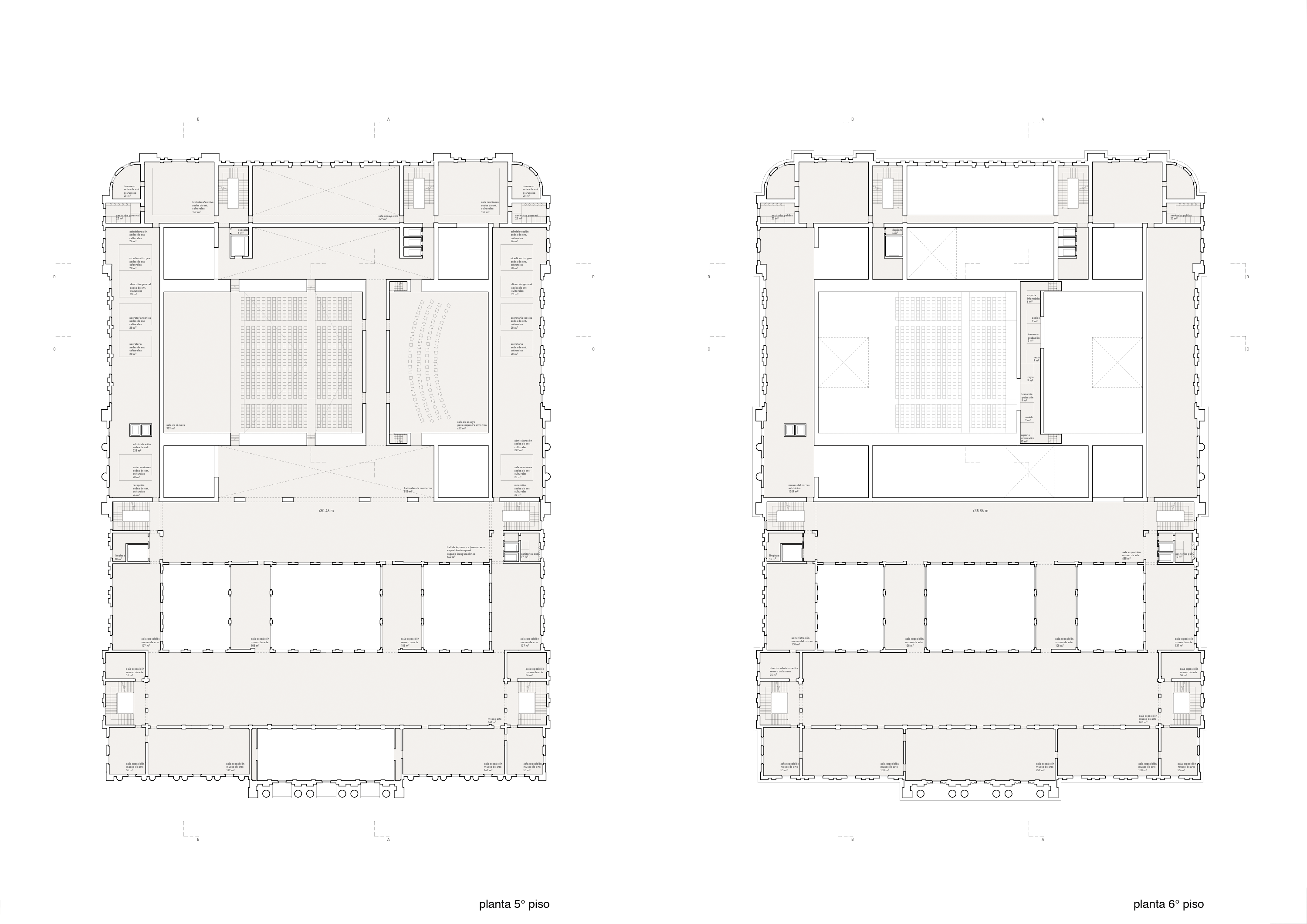
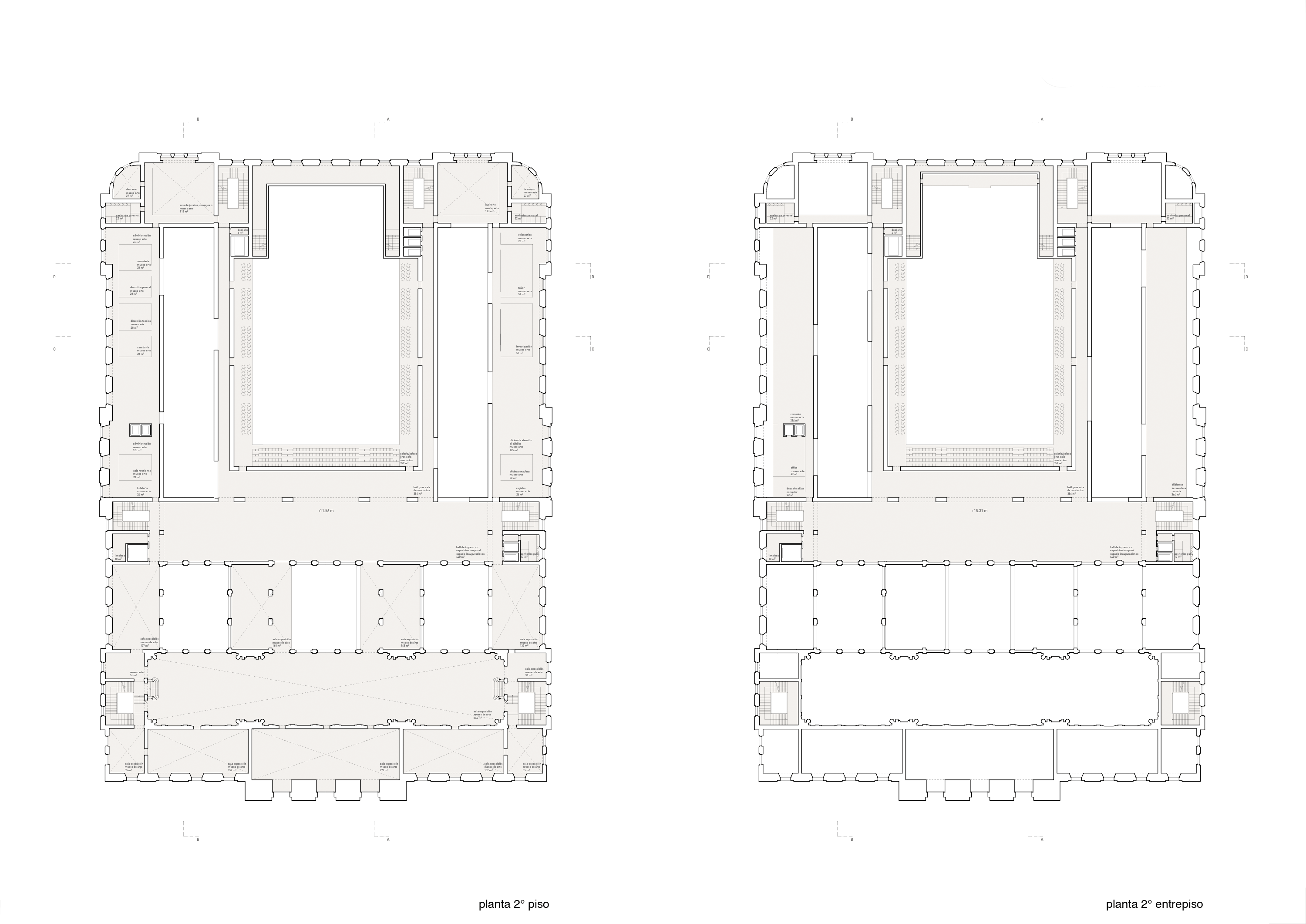
Centro Cultural Bicentenario
Ort
Buenos Aires (ARG)
Jahr
2006
Kategorie
Projektwettbewerb
Auftraggeber
Stadt Buenos Aires
Modell

Urs Wagner

Team

Architektur:
Jean-Pierre Dürig, Margarita Mene Castiñeiras, Valentina Patrono

Bauingenieur:
dsp Ingenieure & Planer AG

HLKSE:
Amstein + Walthert AG

Akustik:
Bakus Bauphysik & Akustik GmbH