Liste | Bilder

N°039 + INFO
Name
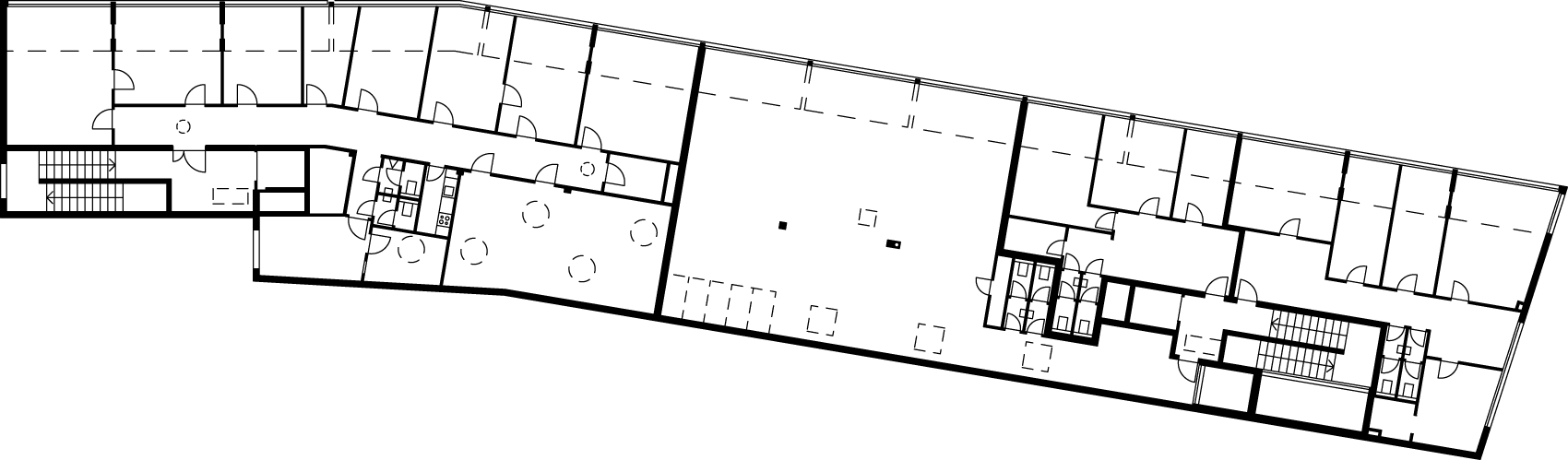
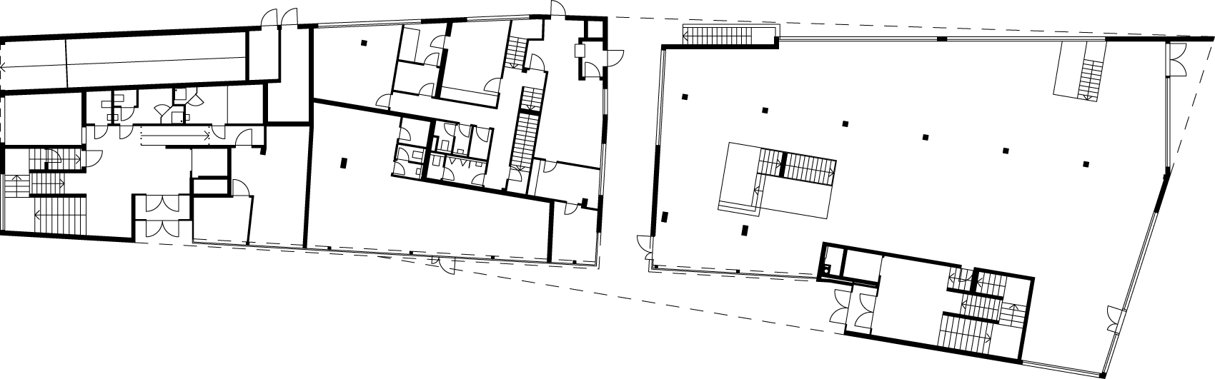
Bürohaus 'Am Stölzlpark'
Ort
Salzburg (AUT)
Jahr
1991-1995
Kategorie
Projektwettbewerb, 1. Preis
Auftraggeber
Baukontrakt GmbH
Foto

©Harry Moor

Team

Architektur:
Dürig & Rämi, Zürich
Jean-Pierre Dürig, Philippe Rämi, Jean-Claude Horlacher, Roger Brunner, Mischa Spörri, Raffaella Taddei, Rolando Zucco, Marlen Hürzeler, Stefan Gisi, Daniel Seitz

Partnerbüro Bauausführung:
Atelier 14, Salzburg
Erich Wagner

Bauleitung:
Baumeister Ing. AG, Salzburg
Roland Birgmann

Fachplanung HLS:
Stampfer & Böckl, Ingenieurbüro für Gebäudetechnik, Salzburg

Fachplanung Elektro:
Ing. Walter Weber, Technisches Büro für Elektrotechnik, Salzburg

Bauingenieur:
Ingenieurbüro Dipl.-Ing. Josef Reibenwein, Zivilingenieur für Bauwesen, Salzburg

Geometer:
Dipl.-Ing. G. Fleischmann, Ingenieurkonsultent für Vermessungswesen, Salzburg