Liste | Bilder

N°232 + INFO
Name
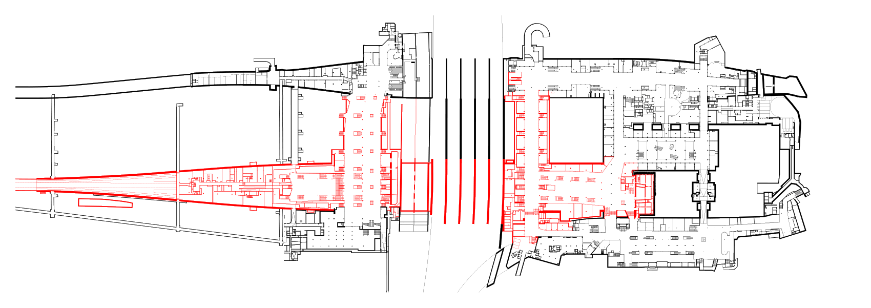
Bahnhof Löwenstrasse, DML A2, Zürich HB
Ort
Zürich
Jahr
2002 - 2014/17
Kategorie
Projektwettbewerb, 1. Preis
Auftraggeber
SBB
Fotos

©Ruedi Walti

Beschrieb

Der neue unterirdische Durchgangsbahnhof Löwenstrasse bildet das Herzstück der Durchmesserlinie. Er befindet sich mit seinen vier Gleisen und zwei Perrons unter den Gleisen 4 bis 9 des darüber liegenden Hauptbahnhofs. Das östliche Perronende ist unter der historischen Bahnhofsquerhalle angeordnet, bevor der Tunnel unter der Limmat in Richtung Oerlikon abtaucht. In Richtung Westen führt am Ende eine Rampe bis zur Einbindung in das bestehende Netz über der Langstrassenunterführung zur Weiterführung in das Gleisfeld im Limmattal. Das Layout des Bahnhofs Löwenstrasse lehnt sich bewusst an das Konzept des bestehenden S-Bahnhofs Museumstrasse an. Das Perrongeschoss des Bahnhofs Löwenstrasse ist jedoch mit zwei 420 m langen Mittelperrons ausgestattet und dient nach Abschluss aller Ausbauphasen auch dem Fernverkehr mit seinen entsprechend längeren Zugkompositionen. Über dem Perrongeschoss, das sechzehn Meter unter der Erde liegt, erstreckt sich im Westen sowie im Osten ein neues Ladengeschoss, das durch die den Bahnhof querende Sihl unterbrochen ist. Drei Querverbindungen – die verbreiterte Passage Sihlquai, die neue Passage Gessnerallee und die Erweiterung der bestehenden Passage Löwenstrasse – erlauben kurze Umsteigewege und verbinden den Bahnhof Löwenstrasse mit den anderen Bereichen des Hauptbahnhofs sowie mit den angrenzenden Stadtquartieren.


Raumgliederung und Erschliessung.
Die einfache und übersichtliche Erschliessung verbessert die Orientierung in den unterirdischen Gebäudeteilen. Grosszügig dimensionierte Passagen und Hallen ermöglichen ein reibungsloses Fliessen des Passantenstromes. Es wurde eine konsequente räumliche Trennung der drei funktional unterschiedlichen Ebenen Perrongeschoss, Ladengeschoss und oberirdischen, historischen Bahnhofshalle umgesetzt. Diese Differenzierung findet auch in der Materialisierung ihren Ausdruck. Dadurch entstehen identifizierbare Orte.

Das Shopping-Geschoss (Bahnhof und Shopville) verbindet unterirdisch die angrenzenden Stadträume und Funktionen (Bahnhofplatz, Bahnhofstrasse, Europaallee, Sihlufer, Carparkplatz, Landesmuseum, Platzspitzpark, Tramstationen) miteinander und schafft so ein unterirdisches Quartier von beträchtlichem Ausmass und kommerzieller Bedeutung. Die Bezeichnung „Railcity“, ein ursprünglich nur als Brand gedachter Begriff, wird so gebaute Realität und somit zu einem eigenständigen Stadtteil.


Vertikale Bewegungskörper.
Die vertikalen Erschliessungen wie Treppen, Rolltreppen und Lifte wurden als über alle Ebenen durchgängige Bewegungskörper ausgebildet. Ihre Geometrie reagiert auf den Bestand, in den verschiedenen Ebenen entstehen individuelle Volumen, die teilweise auch statische Funktionen, z.B. als Abfangung von bestehenden Stützen des denkmalgeschützten Bahnhofsdach, übernehmen. Da die Gleislagen in der Perronhalle und dem neuen Tiefbahnhof nicht deckungsgleich gebaut werden konnten, musste für die Personenlifte aus dem Bahnhof Löwenstrasse eine spezielle Lösung mit schräg gestellten Liftschächten entwickelt werden. Die schrägen Liftkörper zeichnen sich im Raum ab und geben über die geometrischen Zwänge in dieser über Jahrzehnte gewachsenen Infrastruktur Auskunft.


Ladengeschoss als Bewegungsraum.
Die Gestaltung der unterirdischen Räume sorgt für eine klare, freundliche und übersichtliche Atmosphäre. Helle, glatte und edel wirkende Oberflächen verwandeln das Ladengeschoss in ein modernes Einkaufszentrum als Bewegungsraum. Dabei wurde für sämtliche Hallen und Passagen dasselbe Material- und Beleuchtungskonzept angewendet. Durch eine einfache sowie robuste Materialisierung und Farbgebung der offenen Ladenfronten, der geschlossene Wandbereiche, des Bodens und der Decke wird mit Unterstützung durch ein stringentes Lichtkonzept ein neutraler Raumeindruck erreicht. Die Architektur ist sehr funktional und verzichtet auf Dekoration. Die Auslagen der Schaufenster, die Werbung, die Signaletik der SBB und die Menschen selbst tragen genug Farbe in diese Räume. Die Architektur bildet einen ruhigen Hintergrund für die Beschilderung, die Nutzung und die Werbung.


Perrongeschoss als Warteraum.
Die beiden Perronanlagen als Warteraum des unterirdischen Bahnhofs Löwenstrasse ergeben mit den Leitungsgalerien helle Inseln. Hingegen sind die Tunnelwände, die Gleisanlagen sowie die Decken über den Gleisen dunkel gehalten. Die Grundbeleuchtung bilden Lichtbänder, die jeweils an der Aussenkante der beiden Leitungsgalerien befestigt sind. Um den zentralen Raumeindruck zu verstärken, besitzen die Leuchtmittel eine entsprechende warme Farbtemperatur.

Team

Architektur:
Dürig AG, Zürich
Armin Baumann, Armin Brantschen, Irene Breckner, Bruce A. Buckingham, Gilbert Cornuz, Joana Domagalski, Jean-Pierre Dürig, Judith Dürr, Otto Fitzi, Sandra Handte, Dominik Isler, Isabelle Kaufmann, Simon Kempf, Bettina Kimmig, Luiza Kitanishi, Katharina Labhart, Sacha Laue, Tobias Noe, Benedict Ramser, Sandra Simic, Simone Trottmann, Martin Wengle

Generalplaner:
uas unternehmen für architektur und städtebau ag, Zürich

Gesamtprojektleitung, Bauingenieur:
ig zalo (Basler & Hofmann AG, Esslingen und Pöyry Infra AG, Zürich)

Baumanagement:
Caretta + Weidmann Baumanagement AG, Zuerich

Haustechnik, Brandschutz, Feuerpolizei:
Amstein + Walthert AG, Zürich

Akustik:
BAKUS GmbH, Zürich

Sprinkler und Wasserversorgung:
IWAG Ingenieure AG, Zürich

Transportanlagen:
hrwehrle, Schachen

Bahntechnik:
ig züriBT, Zürich