List | Images

N°709 + INFO
Name
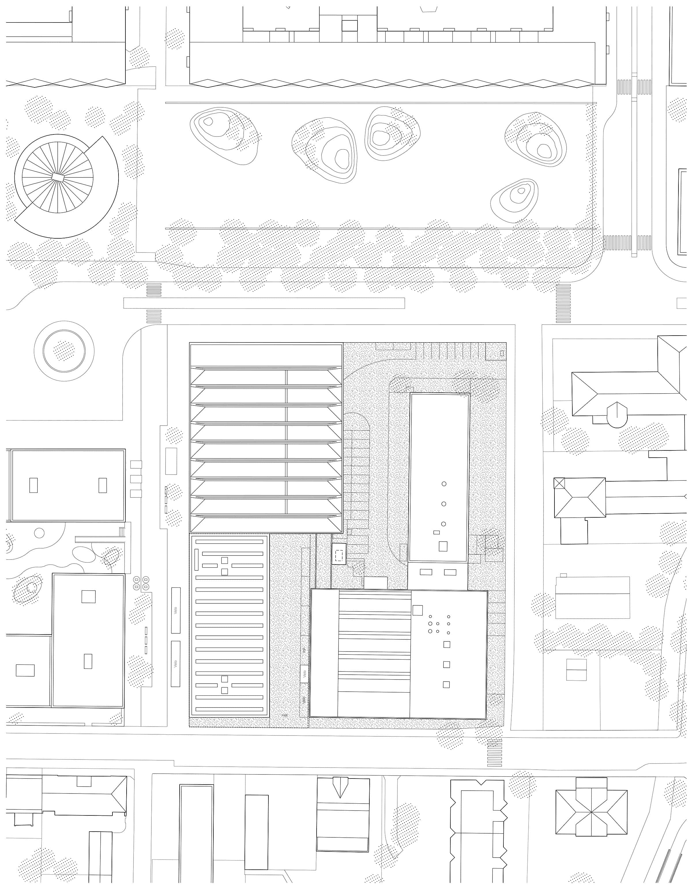
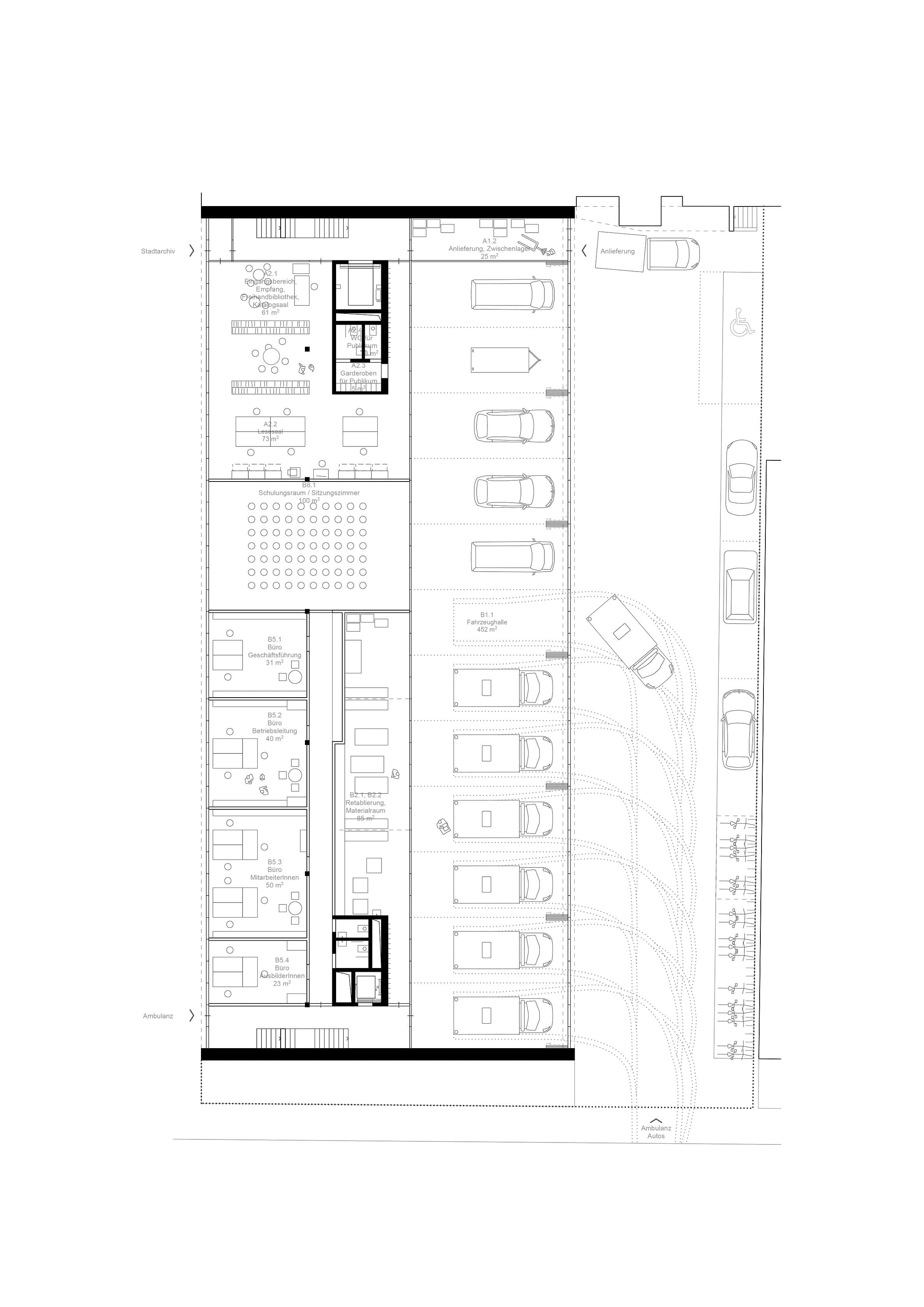
City Archives and Ambulance Parking Garage
Location
Biel
Year
2017
Category
Project Competition, 3rd Prize
Client
City of Biel
Renderings

maaars architektur visualisierungen, Zurich

Model and model photos

Zaborowsky Modellbau GmbH, Zurich

Team

Architektur:
Jean-Pierre Dürig, Noélie Ernst, Dora Sipina

Bauingenieur:
MWV Bauingenieure AG

Verkehrsplaner:
IBV W. Hüsler AG