List | Images

N°842 + INFO
Name
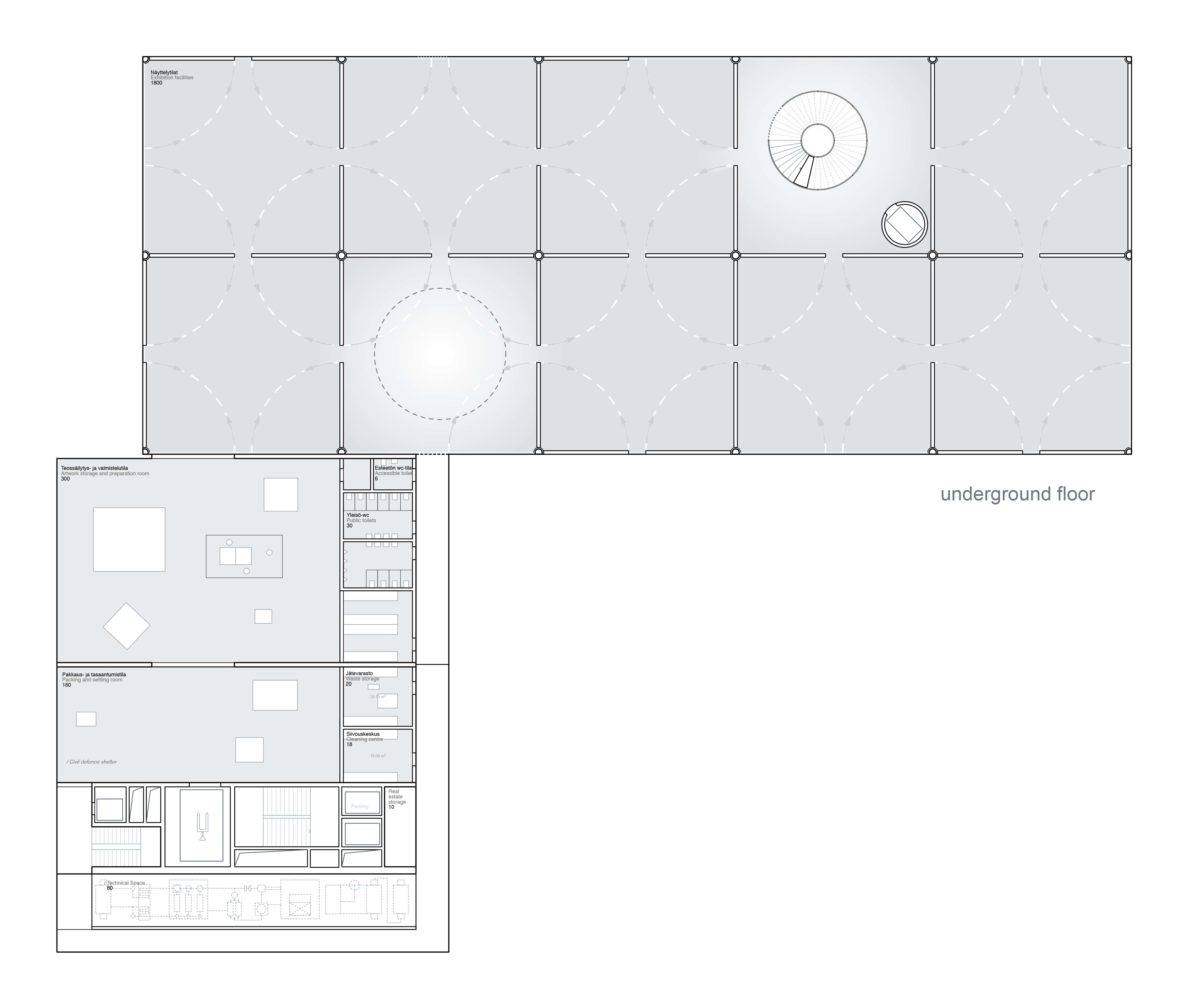
Museum 'Sara Hilden'
Location
Tampere (FIN)
Year
2020
Category
Project Competition
Client
City of Tampere, Sara Hilden Foundation
Model and model photos

Zaborowsky Modellbau GmbH, Zurich

Team

Architektur:
Jean-Pierre Dürig, Tommaso Giovannoli, Verena Nelles