List | Images

N°515 + INFO
Name
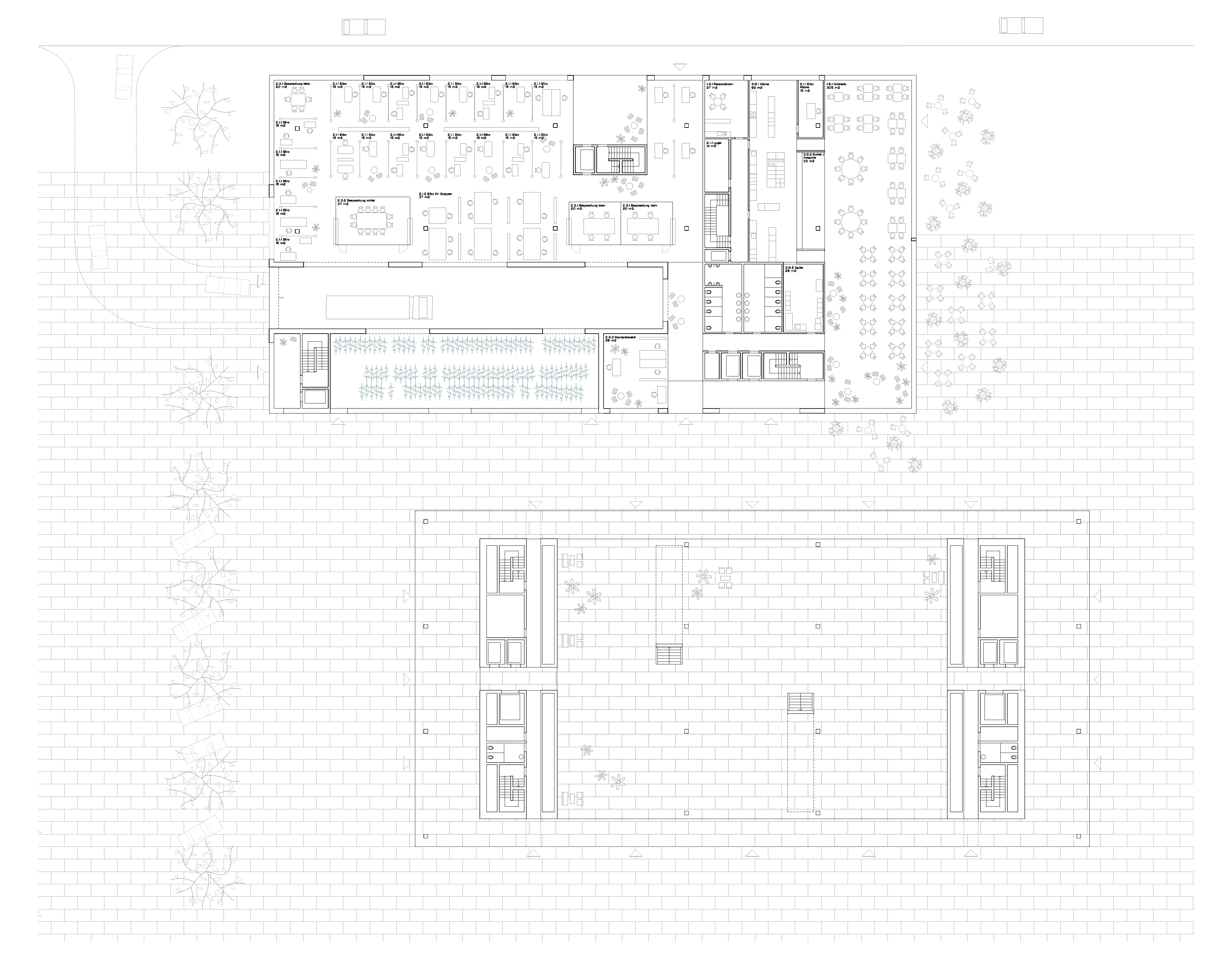
Schällemätteli Life Sciences
Location
Basel
Year
2009
Category
Project Competition
Client
University of Basel
Renderings

Raumgleiter

Team

Architecture:
Jean-Pierre Dürig, Joana Domagalski, Gian Paolo Ermolli, Jonas Fritschi, Stefania Koller, Philipp Schaefle, Caroline Vogel

General manager:
Caretta + Weidmann Baumanagement AG

Landscape architecture:
Schweingruber Zulauf Landschaftsarchitekten, Zurich

Civil engineer:
MWV Bauingenieure AG

HVAC:
Aicher, De Martin, Zweng AG, Luzern

Building services engineering:
Sytek AG

Laboratory planning:
Dr. Heinekamp, Karlsfeld b. München (DEU)

Building physics:
Zehnder & Kälin AG

Building envelope and facade engineering:
Feroplan, Zurich

Fire safety engineering:
A+F Brandschutz GmbH, Pratteln

Elevator planning:
Schindler Augzüge AG, Pratteln