List | Images

N°246 + INFO
Name
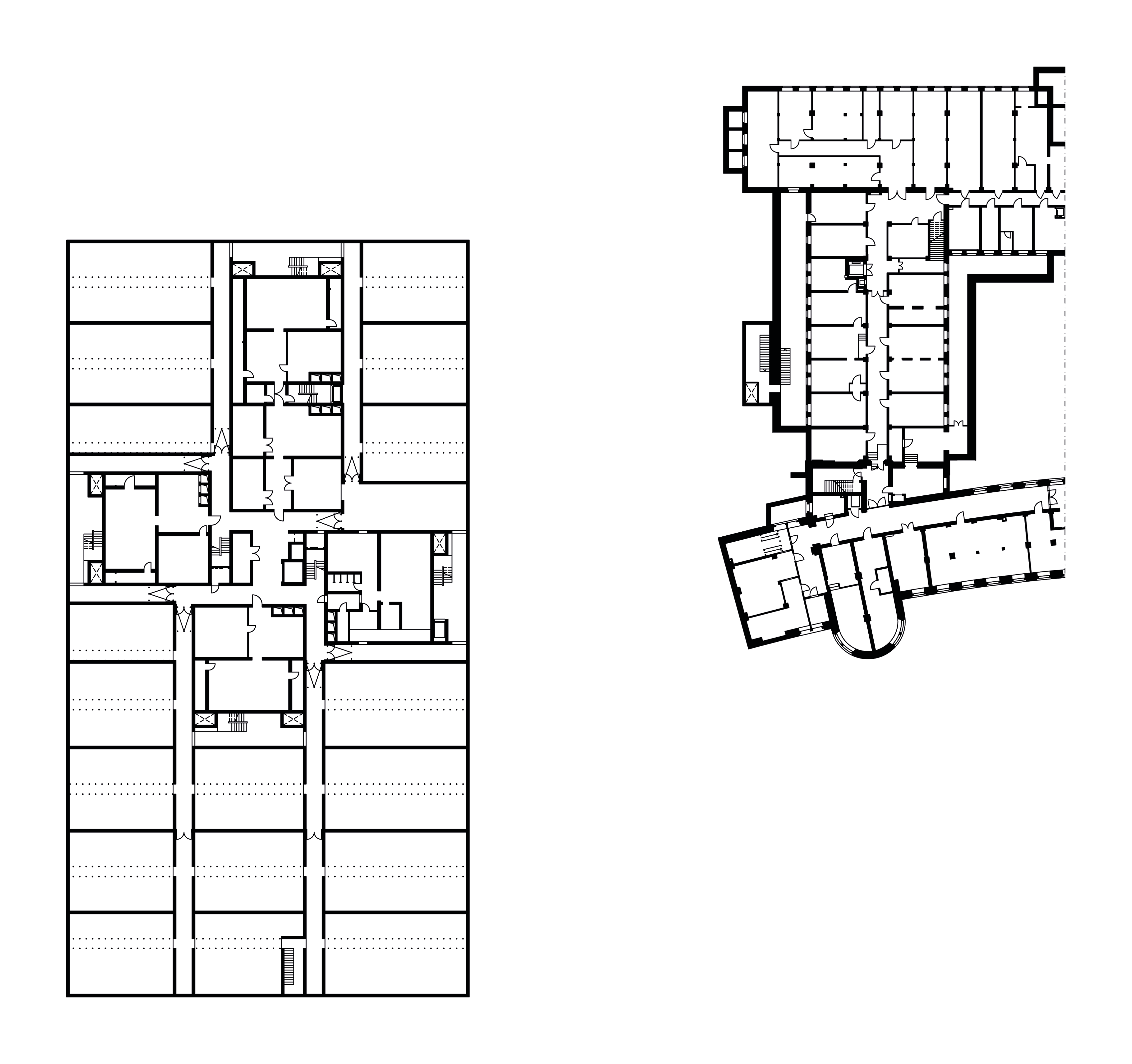
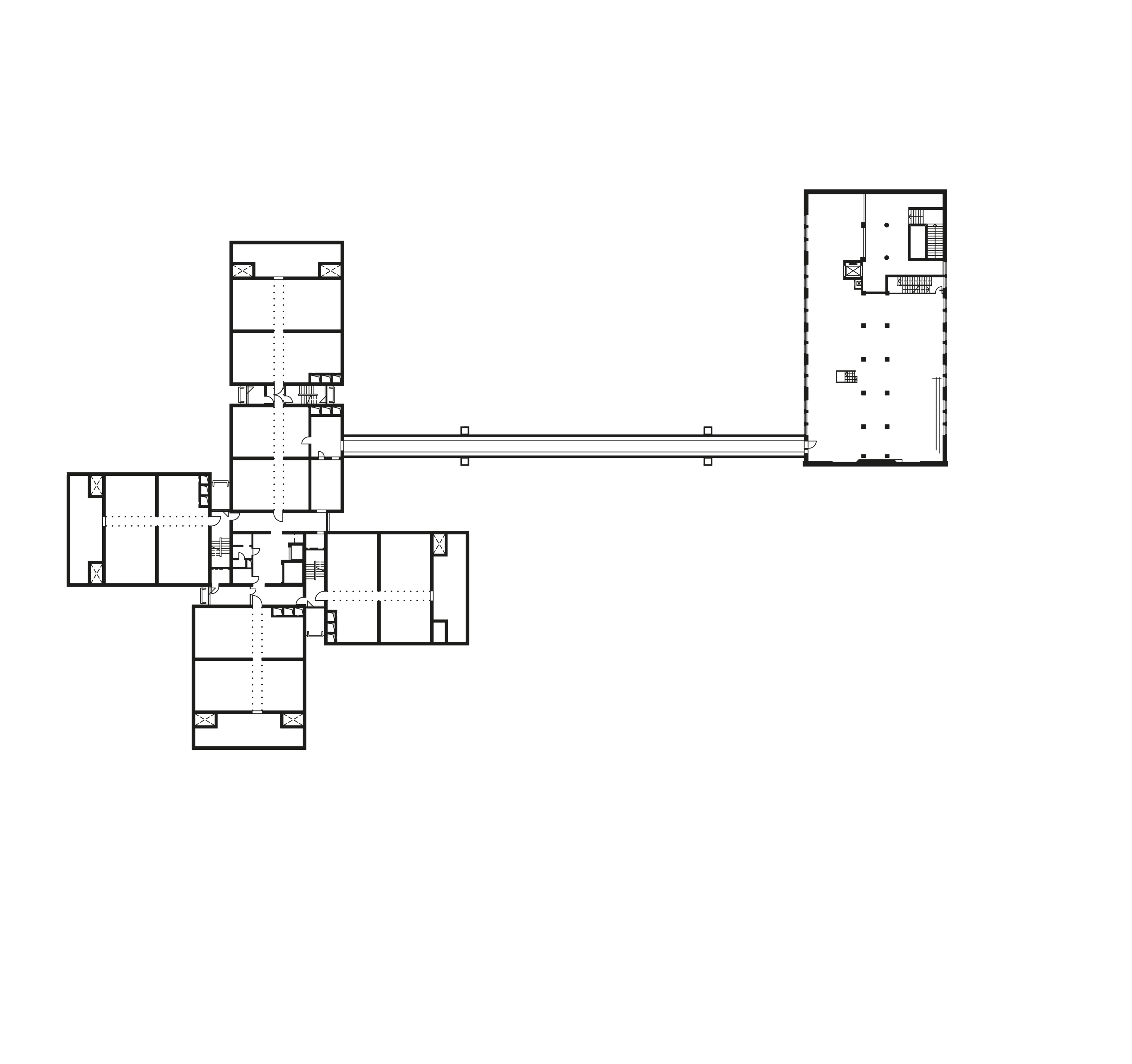
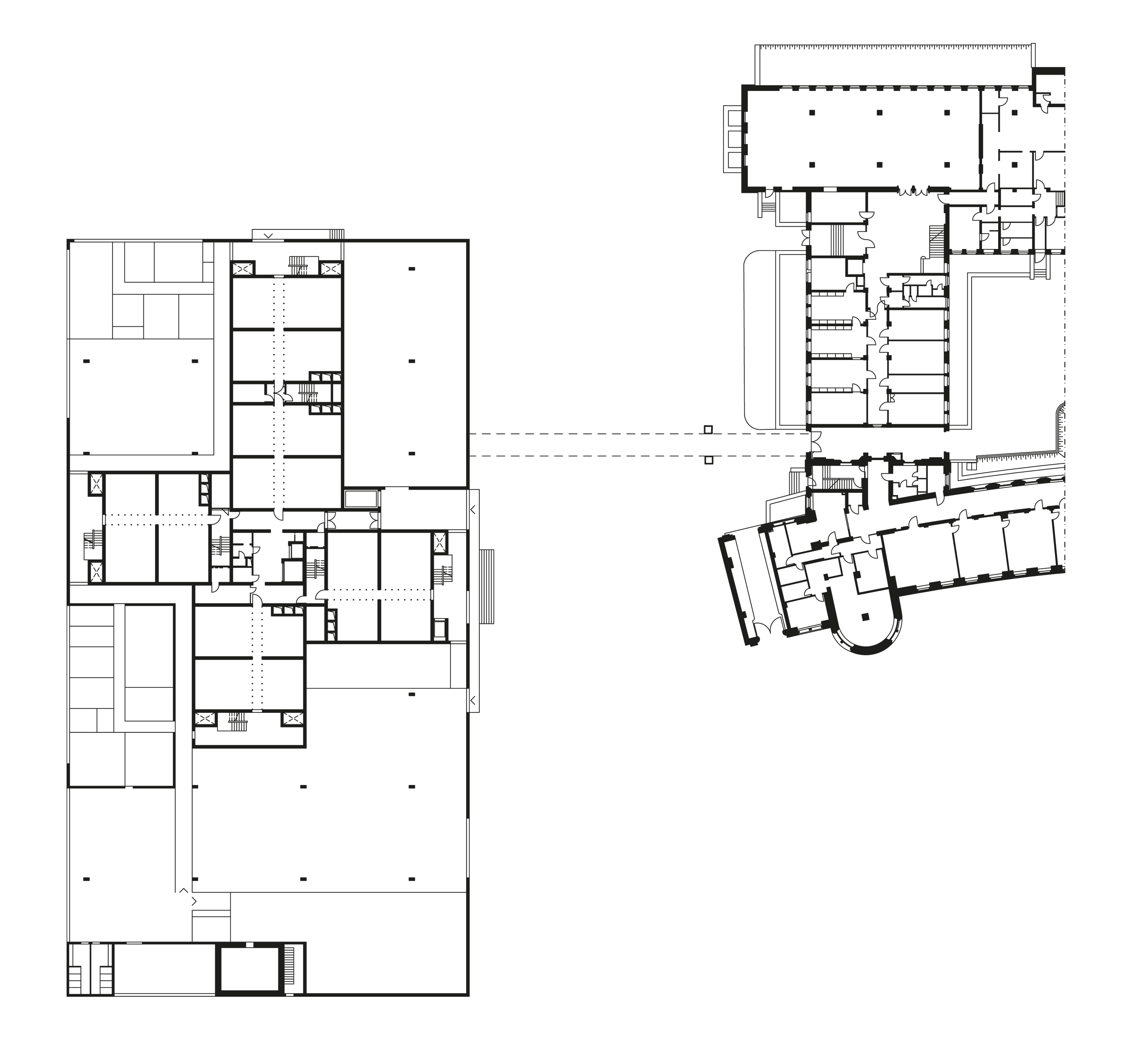
German Library
Location
Leipzig (GER)
Year
2002
Category
Project Competition
Client
State of Germany
Model

Urs Wagner

Team

Architecture:
Jean-Pierre Dürig