List | Images

N°794 + INFO
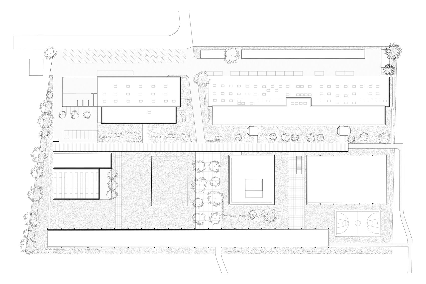
Name
Vocational School
Location
Ziegelbrücke
Year
2019
Category
Project Competition
Client
Canton of Glarus
Model and model photos

Zaborowski Modellbau GmbH, Zurich

Team

Architecture:
DÜRIG AG, Zurich
Guillermo Dürig, Jean-Pierre Dürig, Paul Kuhn

Statics:
MWV Bauingenieure AG, Baden
Ljupko Peric