Liste | Bilder

N°678 + INFO
Name
Umbau und Erweiterung Postareal Baden
Ort
Baden
Jahr
2016 - 2021
Kategorie
Studienauftrag, 1. Preis
Auftraggeber
Zuriba AG
Fotos

©Ruedi Walti

Beschrieb

Aufgabe.
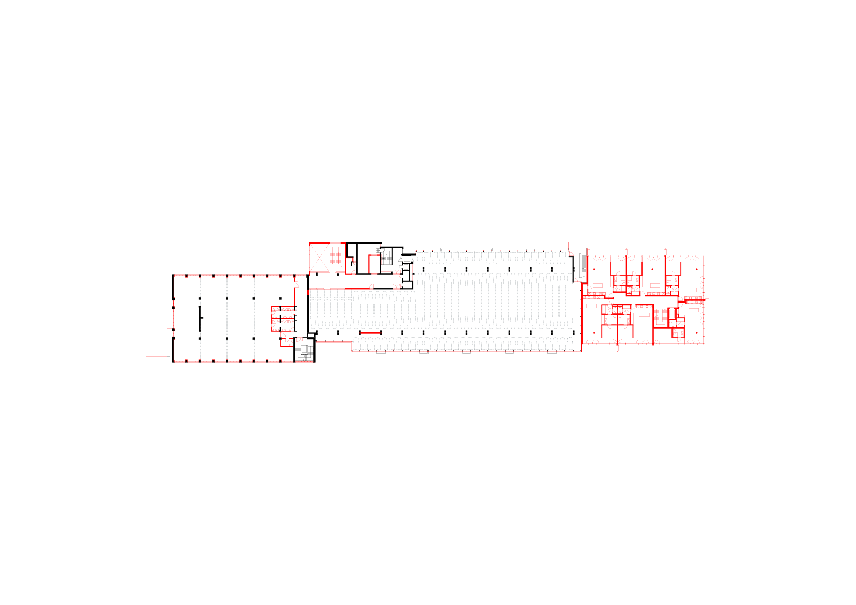
Das denkmalgeschützte Postgebäude auf dem Postareal mit der integrierten Postautostation und dem ehemaligen Kinogebäude in direkter Nachbarschaft wird saniert, ergänzt und revitalisiert. Die Flächen in den Erd- und Untergeschossen werden umgebaut, optimiert sowie strategisch ergänzt. Das Areal erhält eine neue Erschliessung mit neuen Zugängen, einen neuen Platz und eine neue Anlieferung.


Städtebau/Architektur.
Die Gebäudezugänge werden mit zwei Vordächern neu gestaltet. Zwischen Kopf- und Längsbau markiert eine neue Eingangshalle die Adresse vom Bahnhof aus. Der Annex als letzte Erweiterung vervollständigt das Gebäudeensemble von Karl Moser (1931) bzw. Häfeli-Moser-Steiger (1975) mit einer gleichwertigen Architektur und schliesst das Areal nach Norden ab.

Der Erhalt des architektonischen Ausdrucks der Post und ihrer ersten Erweiterung steht im Vordergrund. Die farbliche Anlehnung der Metallbauteile in Kolinal sowie die kubische Volumetrie der Vordächer, Eingangshalle und des Annex schaffen einen Dialog und einen respektvollen Umgang zwischen «alt» und «neu». Die Eingriffstiefe wird auf das nötige Minimum reduziert.

Die neuen Zugänge sowie die Treppe im Norden verbessern die Durchlässigkeit des Areals. Das neue Farb- und Lichtkonzept erhöht die Aufenthaltsqualität mit spezifischen Eingriffen in den unterschiedlichen Räumen.


Umgang Bestand.
Die geschützten Fassaden werden gereinigt und mit neuen Fenstern versehen. Im Kopfbau werden die Rafflamellenstore durch die ursprünglichen Stoffstore ersetzt. Die rohen bestehenden Decken werden zur optischen Raumerhöhung aufgehellt und homogen ausgeleuchtet. Die Technik wird sichtbar an der Decke geführt. Eine minimale, schlichte Verglasung trennt die Erschliessungs- von den Verkaufs- und Büroflächen.


Postautostation.
Die Postautostation wird um zwei Haltekanten ergänzt. Ein neuer Boden aus Hartbeton, die Rückwand, der Eingangskern des Annex aus Sichtbeton sowie eine Glas-Metall-Fassade als Abschluss zum Längsbau transformieren die bestehende Halle komplett.

Die Rippendecke wird neu verkleidet, silbrig ausgestrichen und mit einer linearen Beleuchtung ergänzt. Die Tragkonstruktion strahlt somit gleichmässig von oben und schafft einen hochwertigen Raum mit einem charakteristischen Ausdruck.


Annex.
Der fünfgeschossige Bau mit achtzehn Wohnungen wird an die nördliche Fassade des Häfeli-Moser-Steiger-Baus angebaut. Die architektonische Sprache wird aus den bestehenden Strukturen abgeleitet. Die Geschosshöhen des Bestandes werden übernommen, das Verhältnis zwischen offenen und geschlossenen Fassadenelementen wird invertiert. Die umlaufende Balkonschicht lässt zusammen mit der grossflächigen Verglasung den Anbau leicht und schwebend erscheinen. Die sichtbare Betonkonstruktion referenziert den Längsbau und die Verkleidung in Kunststein des Moser-Baus. Die Postautostation gibt die Tragstruktur vor und bedingt grosse Spannweiten. Die neuen Betondecken mit einer Stärke von 100 cm ruhen auf fünf Stützen sowie dem Erschliessungskern. Das obere Erdgeschoss ist frei.

Team

Architektur:
DÜRIG AG, Zürich
Jean-Pierre Dürig, Guillermo Dürig, Marta Codina (PL), Denis Ferré, Ben Schmücking, Luiza Kitanishi, Manuel Plazuelo, César Rordriguez, Inés Hernández , Gian Derungs

Totalunternehmer:
Allreal AG
Peter Windler

Kostenplaner/Baumanagement/Bauleitung:
Allreal AG
Peter Windler

Landschaftsarchitekt:
Vetsch Landschaftsarchitekten AG, Zürich
Jürg Zollinger

Bauingenieuer:
Dr. Deuring+Oehinger AG, Winterthur
Simon Braun

HLKK-Ingenieur:
Grünberg & Partner AG, Zürich
Serkan Kahramann

Elektro-Ingenieur:
Bhend Eletroplan GmbH, Suhr
Urs Bhend, Christoph Brack

Sanitäringenieuer / Sprinkler:
Reu Gmbh, Langnau
Martin Weideli

Bauphysiker/Akustiker:
Kopitsis Bauphysik AG, Wohlen
Rainer Armbruster

Fassadenplaner:
Bardak Planungsbüro, Schaffhausen
Jugoslav Bardak

Lichtplaner:
Reflexion AG, Zürich
Rico Grob

Verkehrsplaner:
IBV Hüsler AG, Zürich
Daniel Stäubli

Brandschutz:
ProteQ GmbH, Schaffhausen
Domagoj Lucic

Türplaner:
BDS Security Design AG, Bern
Lars Tölle